你的網頁位置:首 頁——設備報價——汽車維修設備出口整廠設備出口(整套設備出口)
目前,汽修設備外貿形式是面對國外經銷商提供單個多量的產品,
是在國內整廠配套的經驗基礎上,我公司推出汽車修理廠整廠成套設備出口模式,成套設備免去了客戶分別采購各類產品的煩惱,
我們提供以下服務。
1:我們提供報關服務,將退稅扣除各類費用后返還給客戶,當然也可以客戶自己出貨。
2:我們提供各類報關手續,包括商檢,裝船前檢驗,出口包裝等手續。
2:我們提供裝箱貨代服務,客戶不用費盡周折找車裝卸貨物。
3:我們提供安裝服務,提供適當費用我們將派安裝人員前往當地安裝。
4:我們提供培訓服務,如果客戶在國內有受訓人員,我們安排在國內培訓。
歡迎帶國際客戶到我公司展廳以及工廠參觀,聯系電話:13801993101 劉歡15921910388
聯系人:John
一:具體流程:
規劃廠房--設備工具(五金)預算--價格洽談--成交合同--備貨/培訓--集裝箱出口--做清關資料
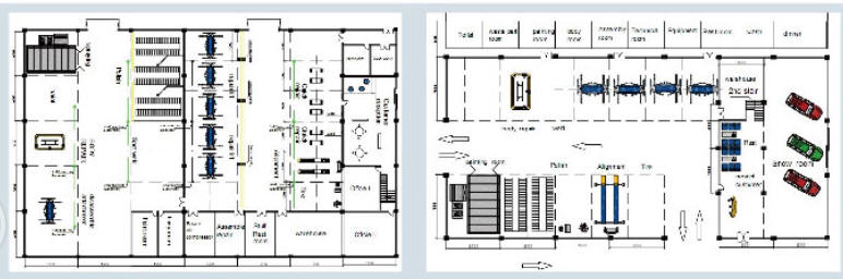
1.1我們為你設計廠房

50mx70m車間設計案例
20mx25m車間設計案例
1.2我們為你裝運貨物

1.3我們提供安裝服務

二:我們出口的國家遍布全世界

累計到現在,我公司已出口了許多國家,
主要有:非洲,俄羅斯,挪威,日本。澳洲,厄瓜多爾,朝鮮,尼日利亞,利比亞等。在安哥拉首都羅安達新開的8家修理廠均由上海衡臣提供的設備,應此積累了不少出口經驗,我們針對服務對象目前為:
國內外貿易公司,國內人士在國外開修理廠的客戶,國內汽車在外售后服務站。以下提供的是標準報價,請根據實際做調整。
需要更加具體的資料請聯系:鐘瑞林
13801993101 劉歡15921910388 02159159353。
全球的修理廠汽車維修設備出口
1:印度尼西亞

2:安哥拉

3:尼日利亞巴拿馬

三:配套方案

|
整廠出口設備整套報價:詳情
具體方案詳情請聯系:13801993101
|
四:出口相關案列動態
給客戶安裝實例
國外客戶動態
2019-06-20:案例:6月出口忙
2019-04-18:案例:埃塞五菱組裝中心設備安裝完成
2019-02-22:案例:智利修理廠開業了,地磚燈光均由衡臣提供
2018-09-10:衡臣9月裝柜忙
2018-06-01:5月裝柜忙
2017-12-25:案例:
中東巴林設備安裝結束
2017-11-30:案例:烏茲別克斯坦整廠安裝順利結束
2017-11-15:11月衡臣出口裝柜忙
2017-08-01:烏茲別克斯坦客戶來衡臣訂貨
2017-07-30:7月衡臣出口裝柜忙
2017-04-10:衡臣3月出口裝柜忙
2016-10-12:案例:9月份出口裝柜忙
2015-10-30:案例:尼日利亞CHRIS來衡臣選購產品
2015-10-25:衡臣十月出口貿易忙2015
2015-05-23:案例:蒙古安裝順利結束
2015-04-20:衡臣參加廣交會圓滿結束
2014-9-30:2014-8月9月裝柜繁忙出口多個國家
2014-7-5:尼日利亞設備安裝結束
2014-6-20:6月份衡臣裝柜忙
2014-6-15:衡臣接待多個國外客戶
2014-3-28:衡臣2天裝完10個出口集裝箱
2013-12-12:尼日利亞客戶設備安裝結束
2013-06-30:衡臣迎來ZUI忙的月份7月份(多圖)
2013-4-27:上海衡臣展廳圓滿建成
2013-3-25:巴拿馬客戶修理廠開業了
2013-3-10:孟加拉客戶ASIK來衡
臣培訓以及購買設備
2012-11-2:衡臣10月份出口裝柜達5個大柜
2012-7-20:印尼客戶建廠圓滿結束,客戶非常滿意
2012-4-15:3月衡臣出口裝箱發貨忙
五:上海衡臣汽車維修設備出口具有規模的整廠單有:
2014年客戶
1:贊比亞10個柜子
2:伊朗10個柜子
3:安哥拉3個柜子
4:緬甸等等
2013客戶
1:安哥拉目前有10家整廠由上海衡臣提供
2:尼日利亞目前有15家修理廠由上海衡臣提供
3:非洲銷售的國家有:肯尼亞,烏干達,尼日利亞,摩洛哥,莫桑比克,剛果金,博茨瓦納,贊比亞,坦桑尼亞。
4:中東地區有:拉脫維亞,利比亞,沙特,阿塞拜疆
5:其他較多的還有:巴拿馬,俄羅斯,阿塞拜疆,朝鮮,等
6:東南亞:緬甸,馬來西亞,新加坡,泰國,澳大利亞,印度尼西亞較多
上海衡臣的產品已經遍布全球50%的國家地區。我們的專業服務,為你省心省力省錢。
2012客戶
1:莫桑比克快修店
2:東非福田增開地三家分店設備供應
3:印度尼西亞整廠配套
4:美國,丹麥等國家整柜出口
到2011年底,衡臣已出口安哥拉修理廠設備達8套。尼日利亞達5套
2011年部分客戶案例
1:東非福田增開分店特約維修站
2:安哥拉修理廠(溫州客戶)
3:安哥拉修理廠(北京客戶)
4:安哥拉修理廠(青島客戶)
5:安哥拉修理廠(義烏客戶)
6:尼日利亞快修店4套
7:南非整廠快修店2套
8:莫桑比克修理廠1套
9:巴拿馬長期供貨
。。。。。
2010年部分出口案例
1:尼日利亞吉利特約維修站 (轎車)
2:尼日利亞JEROME先生自建修理廠(轎車)
3:尼日利亞礦山機械牽引車維修站(貨車整廠)
4:加納吉利特約維修站(轎車整廠)
5:安哥拉礦山及轎車維修站(轎車貨車)
6:廈門大金龍非洲維修站(大巴整廠)
7:俄羅斯大巴維修設備一批(大巴整廠)
8:朝鮮水產廳轎車維修設備一批(轎車)
整廠報價請參考 具體方案詳情請聯系:13801993101 劉歡15921910388